TRAVAUX D'ADAPTATION P.M.R. (Personnes à Mobilité Réduite) DE LA SALLE DES FÊTES ET DE L'ECOLE
PROJET POUR LA SALLE POLYVALENTE :
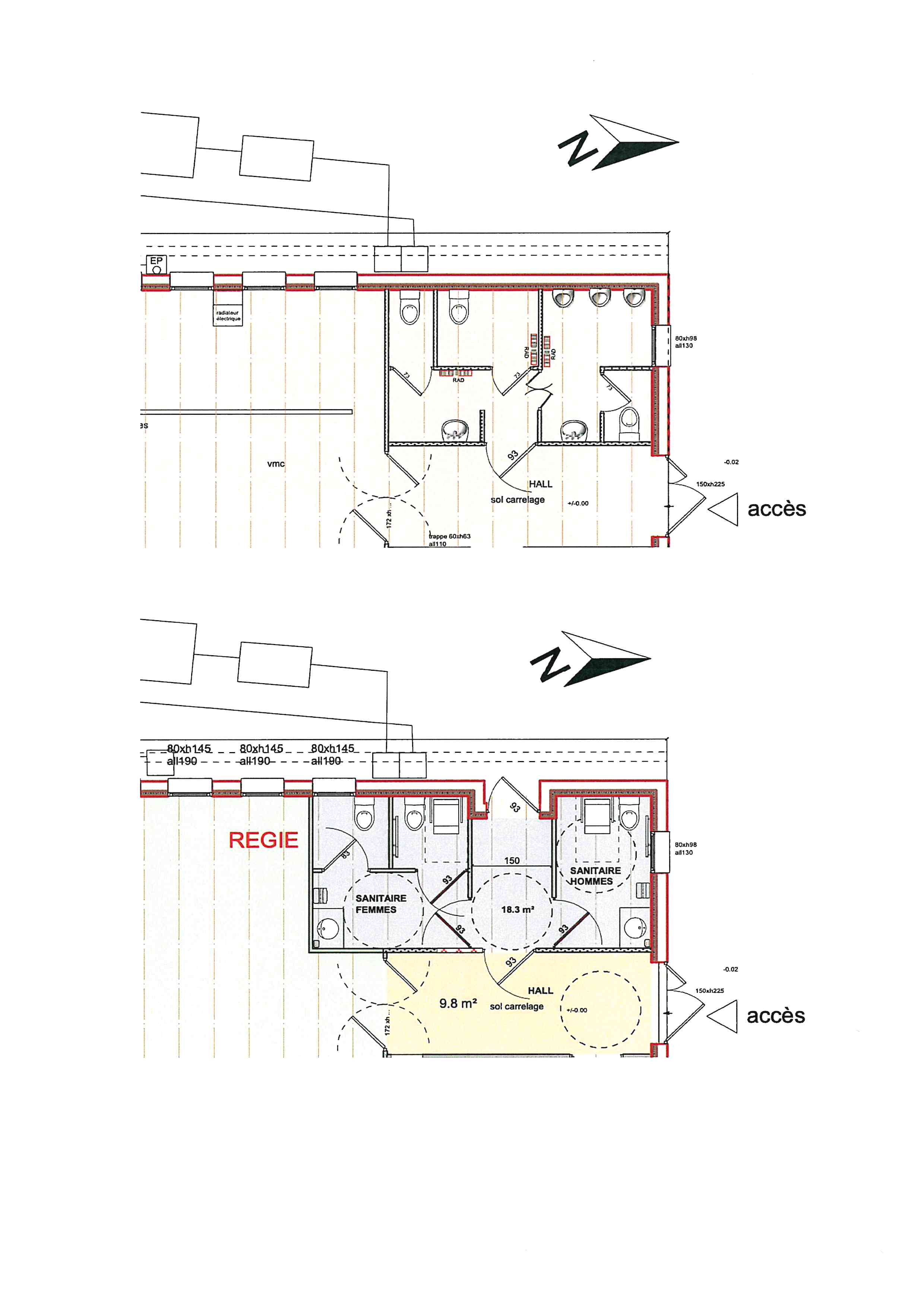
La mise aux normes PMR oblige à élargir le local des toilettes sur la salle proprement dite.De plus, pour permettre l'utilisation des toilettes lors d'évènement festifs organisés sur la place
sans avoir à ouvrir la totalité de la salle, une ouverture sur l'extérieur est prévue.
PROJET POUR L'ECOLE :
L'école de Saint-Maurice-Aux-Riches-Hommes accueille des enfants de Maternelle.
Des toilettes pour les adultes ont déjà été adaptées.
Il reste à faire l'aménagement des toilettes pour les enfants.
Pour ces deux projets des subventions ont été accordées par l'Etat et le Département (Voir plan de financement ci-joint)
Ci-dessous les plans pour le projet de la salle des fêtes (avant et après travaux) :

Liste de pièces jointes